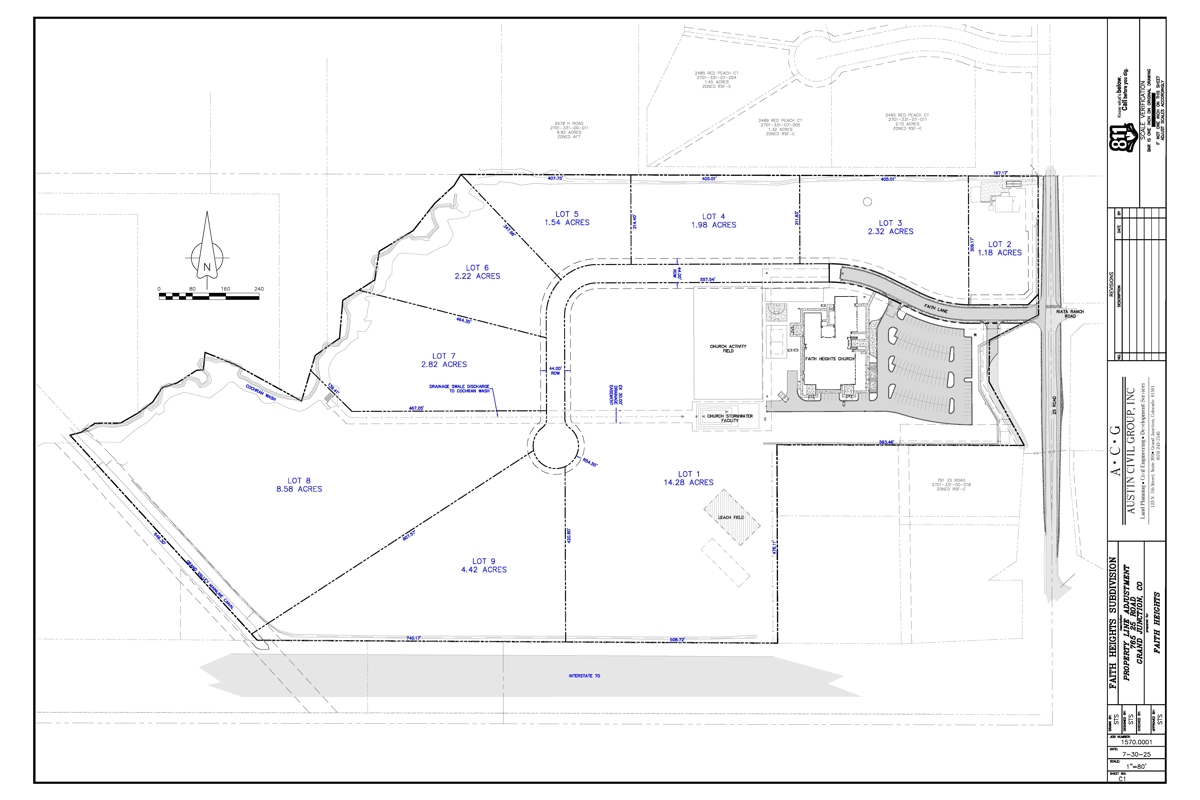
Welcome to Grand Junction’s Newest Large Lot Subdivision! Rare development opportunity in North Grand Junction! This 25-acre parcel is primed for residential development with the flexibility today’s builders and investors are looking for. The property can be divided into 7 lots, with lot sizes determined entirely by the developer—perfect for creating large estate properties or a thoughtfully designed single-family or multi-family residential project. Developers have the freedom to establish their own covenants, architectural guidelines, and HOA documents, allowing you to shape the vision of the community from the ground up.A portion of the road has already been constructed, leaving only a short extension needed to complete access—an immediate cost savings and head start for your project. Irrigation water is available for landscaping, helping maintain attractive outdoor spaces and adding value for future homeowners. Septic systems are permitted, eliminating the need for costly sewer infrastructure.Located in the highly desirable North Grand Junction area, this property offers a rare combination of space, flexibility, and proximity to town. Residents will enjoy easy access to shopping, dining, schools, and medical services while still experiencing the privacy and openness that larger parcels provide.
Grand Junction continues to attract new residents seeking an exceptional Western Colorado lifestyle. With nearby hiking and biking trails, world-class mountain biking, the Colorado National Monument, local wineries, golf courses, and year-round outdoor recreation, the region has become one of the fastest-growing destinations on Colorado’s Western Slope. This is a unique chance to develop in a thriving market where demand for quality housing and spacious lots continues to rise.
