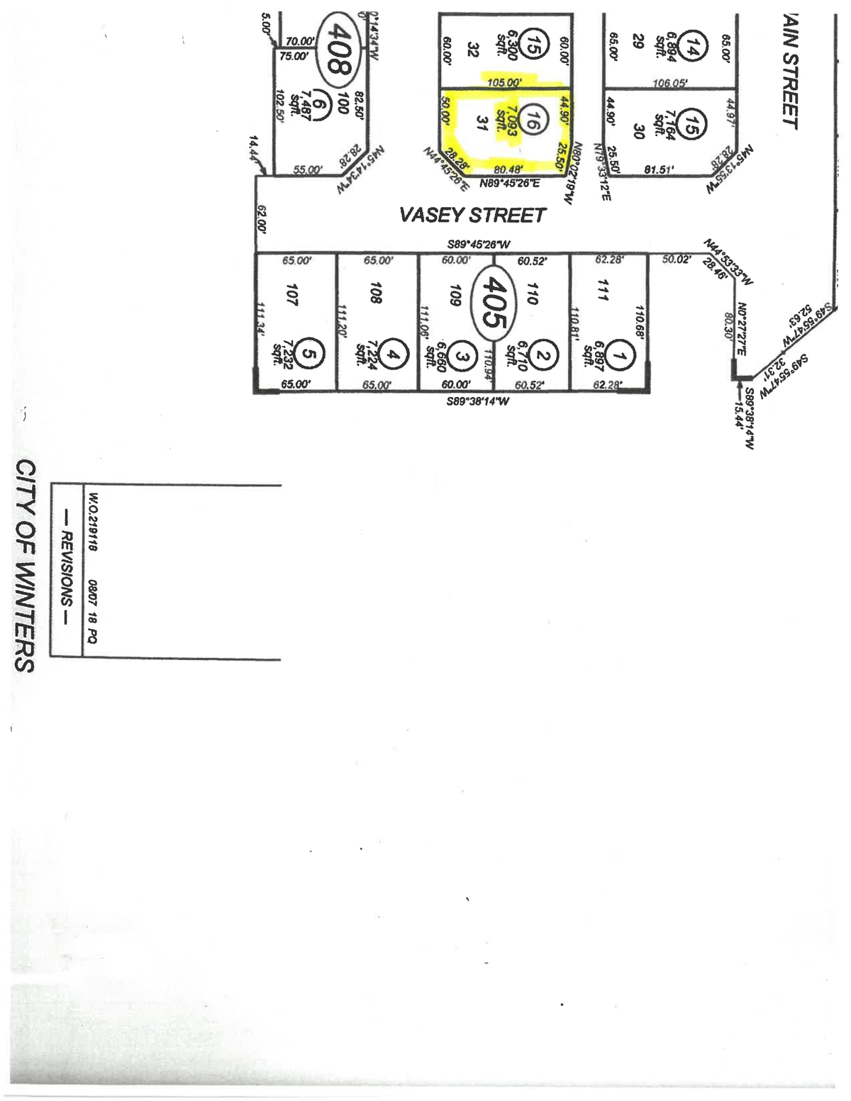
Winters, California Lot to Build House for Sale
Winters, CA – Ready to build corner lot awaits your dream home! Located in a great neighborhood of vibrant Winters with already approved 2,355 sf single story home by the City of Winters (can be changed). All of the
utilities including electricity, sewer, water and natural gas are to the
property already, and sidewalks are in, too. This corner lot also has side/back alley access and is 7,093 square
feet, so plenty of room for a large yard.- Parks and schools are close by- No HOA and no Mello-Roos fees- City approved plans for a 2,355 sq ft
single story home are includedWelcome to Winters!















