Discover the perfect blend of privacy, functionality, and natural beauty
with this exceptional 81-acre farm nestled in Theodosia, Missouri—right in the
heart of the scenic Ozarks. Ideally located near thousands of acres of Mark
Twain National Forest and just minutes from Bull Shoals Lake, this property
offers endless opportunities for outdoor recreation, hunting, and peaceful
country living.
The land is thoughtfully balanced with approximately half open pasture
and half mature timber, making it ideal for livestock, farming, or recreational
use. A wet weather creek meanders through the property, adding to its charm and
attracting local wildlife.
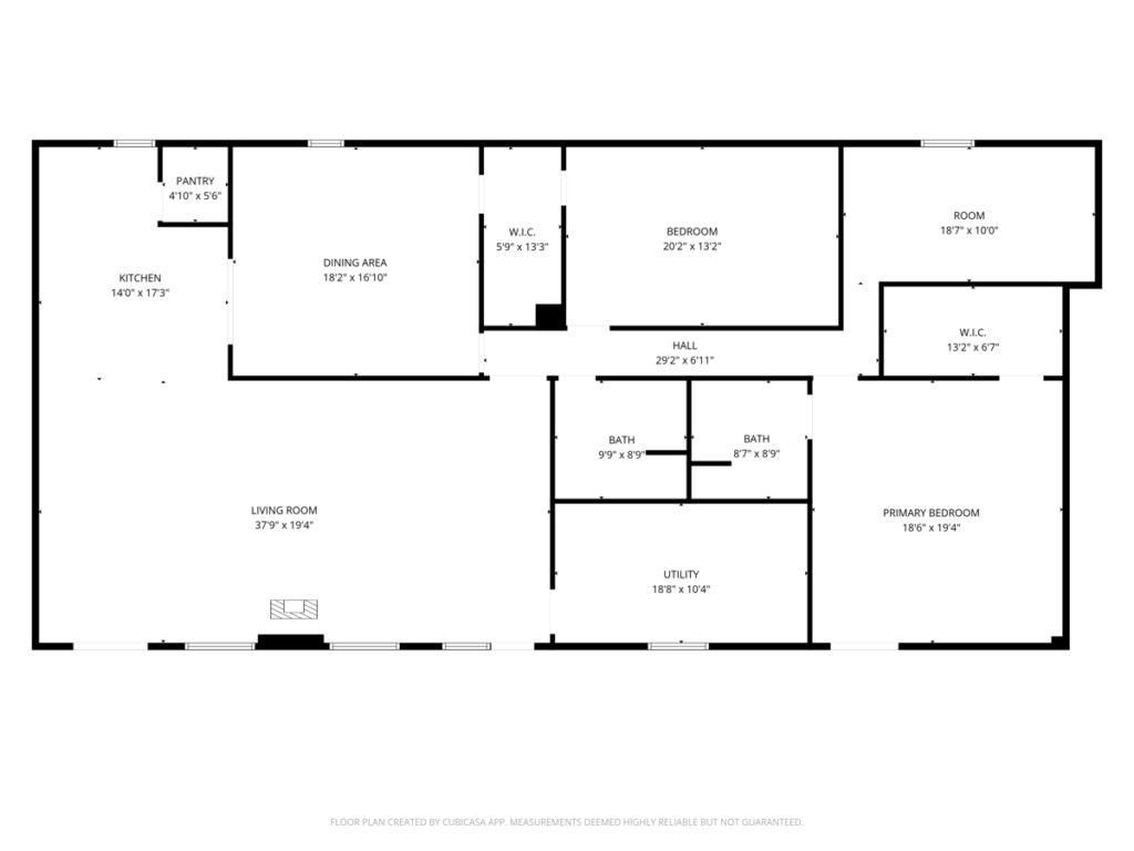
At the center of the farm sits a spacious 3-bedroom, 2-bath earth berm
home offering approximately 2,750 square feet of living space. Designed for
energy efficiency and comfort, the home features generously sized rooms and has
seen important updates, including a newer HVAC system and roof installed around
eight years ago.
Outbuildings are ready to support a variety of uses, including a
substantial 60×42 barn perfect for equipment, hay storage, or livestock, as
well as a 900 square foot detached garage/shop—ideal for projects, storage, or
a home-based business.
Whether you’re looking for a working farm, a recreational retreat, or a
private homestead surrounded by nature, this versatile Ozarks property delivers
space, convenience, and opportunity in one remarkable package.







































