Welcome to your Ozark retreat! Nestled just minutes from the
sparkling waters of Bull Shoals Lake, this charming 3-bedroom, 1.5-bath home
offers peaceful living and endless outdoor recreation. Whether you’re seeking a
full-time residence, weekend getaway, or income-generating property, this
versatile home checks all the boxes.
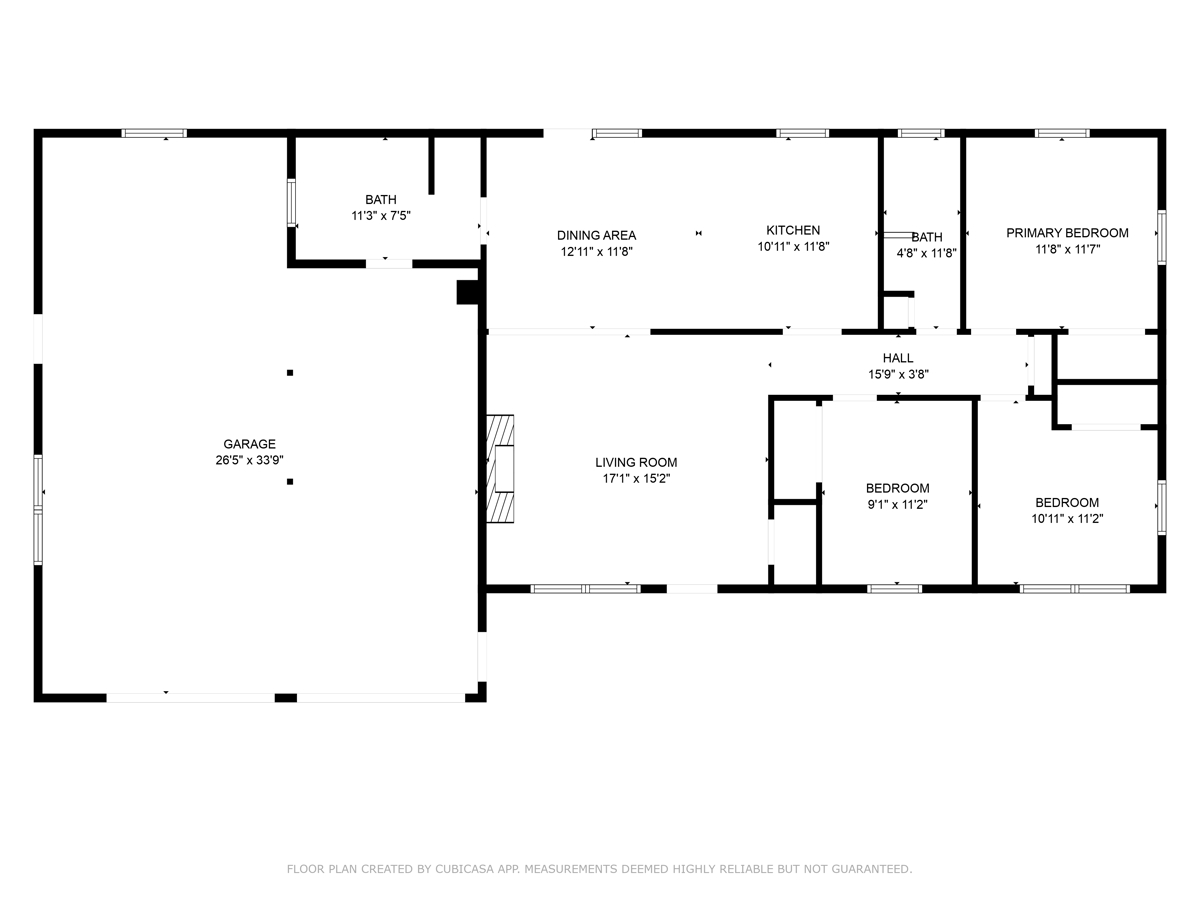
The main house features a warm, inviting layout with updated
flooring. The spacious living area flows into a functional kitchen with
breakfast bar, ample cabinetry and a cozy dining space. Each of the three
bedrooms offers comfort and privacy, while the full bath is centrally located.
Step outside to a generous yard with mature trees, including
fruit trees, perfect for relaxing or entertaining. But the real bonus? A
separate guest house/apartment on the property—ideal for extended family,
visitors, or rental income! This unit is a separate structure, offering privacy
and convenience.
Located in a quiet neighborhood just outside Gainesville,
you’re only minutes from Bull Shoals Lake for boating, fishing, and swimming,
and close to town amenities, schools, and restaurants. Enjoy the best of
small-town living with the beauty of the Ozarks right outside your door.
Don’t miss this unique opportunity to own two homes in one
beautiful location. Perfect for multi-generational living, Airbnb potential, or
a peaceful lake-area lifestyle.



























